021-65987000

房屋改造

renovation

180㎡顶楼复式,简约不简单案例

Housing renovation case
户型

复式

面积

180 m2

风格

现代简约

成员

2

造价

45

180㎡顶楼复式,简约不简单
新时代富嘉花园业主

业主装修诉求

新时代富嘉花园业主
房子是业主置换二手房,主要给儿子结婚居住,父母和老人也过来,方便照顾,原有房屋功能划分不是很适合,楼梯位置不是很好,原有厨房比较小,因为有老人考虑安装电梯。然后希望有大一点的衣帽间。希望整体风格简约为主,不希望做的太复杂,要回到家能卸下工作压力放松下来。
代志军

『大众点评』 资深大宅设计师

查看更多
代志军
代志军
设计总监(S)
查看更多

代志军/设计总监(S)

设计方案阐述 - 定制新生活
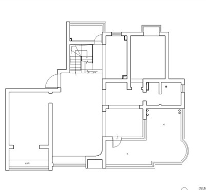
原有房子的楼梯位置不是很好,影响整个房屋采光,从新设计楼梯位置,既解决厨房采光问题,也解决原厨房过小问题,采用中西厨设计,满足日常使用。电梯是整个房子新增加的东西,位置考虑在房子中间,合理利用走道不浪费空间。客餐厅采用联通设计,中间用吧台做隔断,使整个客餐厅有通透感。门厅玄关与储物间之间做移门设计,做到美观,储物间的门合理隐藏。利用原有楼梯位置增加大量衣帽间,解决储物问题。 两个卫生间采用干湿分离,方便家庭各个成员使用。
房型设计改造
vs
vs

领略设计新意

Appreciate design innovation
客厅 卫生间 楼梯 次卧 餐厅

改造前:

改造后: 设计我家 >

改造前:

改造后: 设计我家 >

改造前:

改造后: 设计我家 >

改造前:

改造后: 设计我家 >

改造前:

改造后: 设计我家 >

改造前:

改造后: 设计我家 >

改造前:

改造后: 设计我家 >

改造前:

改造后: 设计我家 >

改造前:

改造后: 设计我家 >

改造前:

改造后: 设计我家 >

客厅 卫生间 楼梯 次卧 餐厅
预见新家

免费获取定制化装修方案

点击立即预约

已有312位客户成功获取方案

选择同济经典的9大理由

Reason for choice
  • 上海资深海派装企,Since1994

    上海资深海派装企,Since1994

  • 全国双甲资质,设计施工双重保障

    全国双甲资质,设计施工双重保障

  • 媒体全程监督,超级装电视节目指定

    媒体全程监督,超级装电视节目指定

  • 好设计更完善,效果图100%神还原

    好设计更完善,效果图100%神还原

  • 专利“四防工艺”,杜绝施工隐患

    专利“四防工艺”,杜绝施工隐患

  • 环保建材体系,为您和家人的健康保驾护航

    环保建材体系,为您和家人的健康保驾护航

  • 第三方联盟,专业铸造更高水准装修

    第三方联盟,专业铸造更高水准装修

  • 先装修后付款,一年期0利息0手续费全免

    先装修后付款,一年期0利息0手续费全免

  • 急速售后,水电10年质保 报修24H响应

    急速售后,水电10年质保 报修24H响应

每年服务800户业主, 好评率超过99%

Rave reviews
每年服务800户业主, 好评率超过99%
更多业主评价
留下您的联系方式
专属客服稍后给您发送地址
提交
提示:同济经典向您承诺,您的个人隐私我们会严格保密!
预约设计
已有 36 人成功预约
提交
提示:同济经典向您承诺,您的个人隐私我们会严格保密!